Rovnou na obsah Rovnou na menu
Menu
Obec Hrobice
Hrobice na Moravě

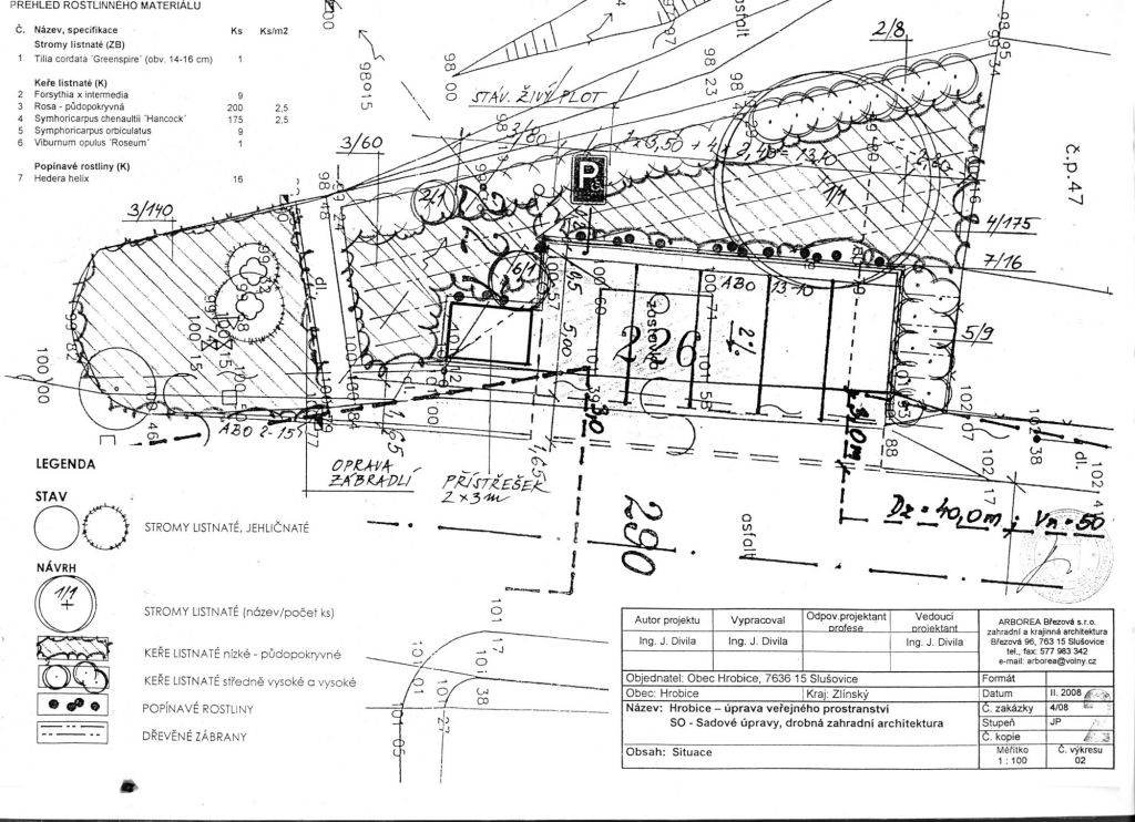
Projekt parkoviště

Projekt parkoviště

projekt

Datum vložení: 12. 6. 2013 0:00
Datum poslední aktualizace: 11. 6. 2025 14:52
Autor: webu Správce
Obec Hrobice